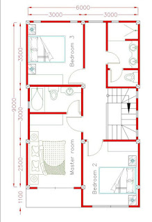
Plan maison plain pied en duplex avec 3 chambres gratuit
Plan maison plain pied en duplex avec 3
chambres gratuit de 6x9 mètres
La maison a :
- Petit jardin
- Bureau
- Salon
- Salle à manger
- Cuisine
- 3 chambres avec 2 salles de bain
- 1 toilettes invités, magasin sous l'escalier
- Pour la machine à laver, vous pouvez la mettre dans les toilettes des invités ou
- construire une extension à l'arrière de la maison
Tags : Keyword : Mots clés :
plan maison 3d
plan maison moderne
plan maison 100m2
dessiner plan maison
plan maison moderne 3d
plan de maison simple
plan de maison pdf
plan maison en ligne
plan maison gratuit
plan de maison gratuit
plan maison 3 chambres salon cuisine salle de bain
plan maison 3 chambres salon, cuisine salle de bain pdf
plan maison 3 chambres 3d
plan maison 3 chambres étage
plan de maison simple 3 chambres pdf
plan de maison 3 chambres salon + cuisine 3d
plan maison 3 chambres, 2 salles de bain pdf
plan maison 3 chambres plain-pied













