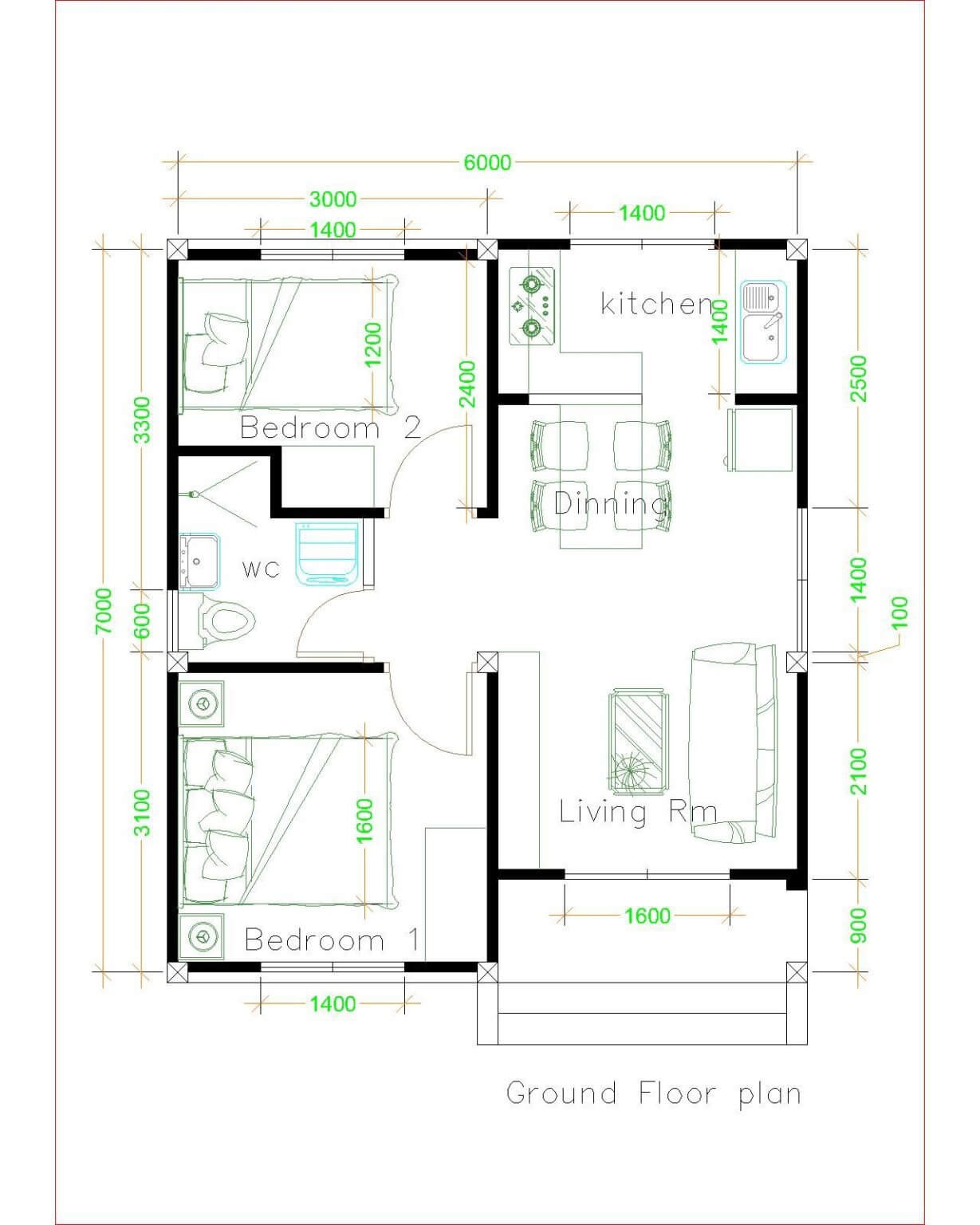
30 plan maison intelligents confortable
Chacun rêve de sa propre maison privée. Parfois, le manque d'espace et de financement rend impossible la construction d'une grande et spacieuse maison. De nombreux architectes connaissent bien la demande des clients pour des plans de petite maison avec une disposition chaleureuse et un haut degré de confort. Alors ici, découvrez 30 idées de plans de maison intelligents pour une vie confortable.




























